Burlingame Town Square

Years
2020-2022

Client
City of Burlingame

Collaborators
SWA

Services provided 
Urban Design
Conceptual Architecture

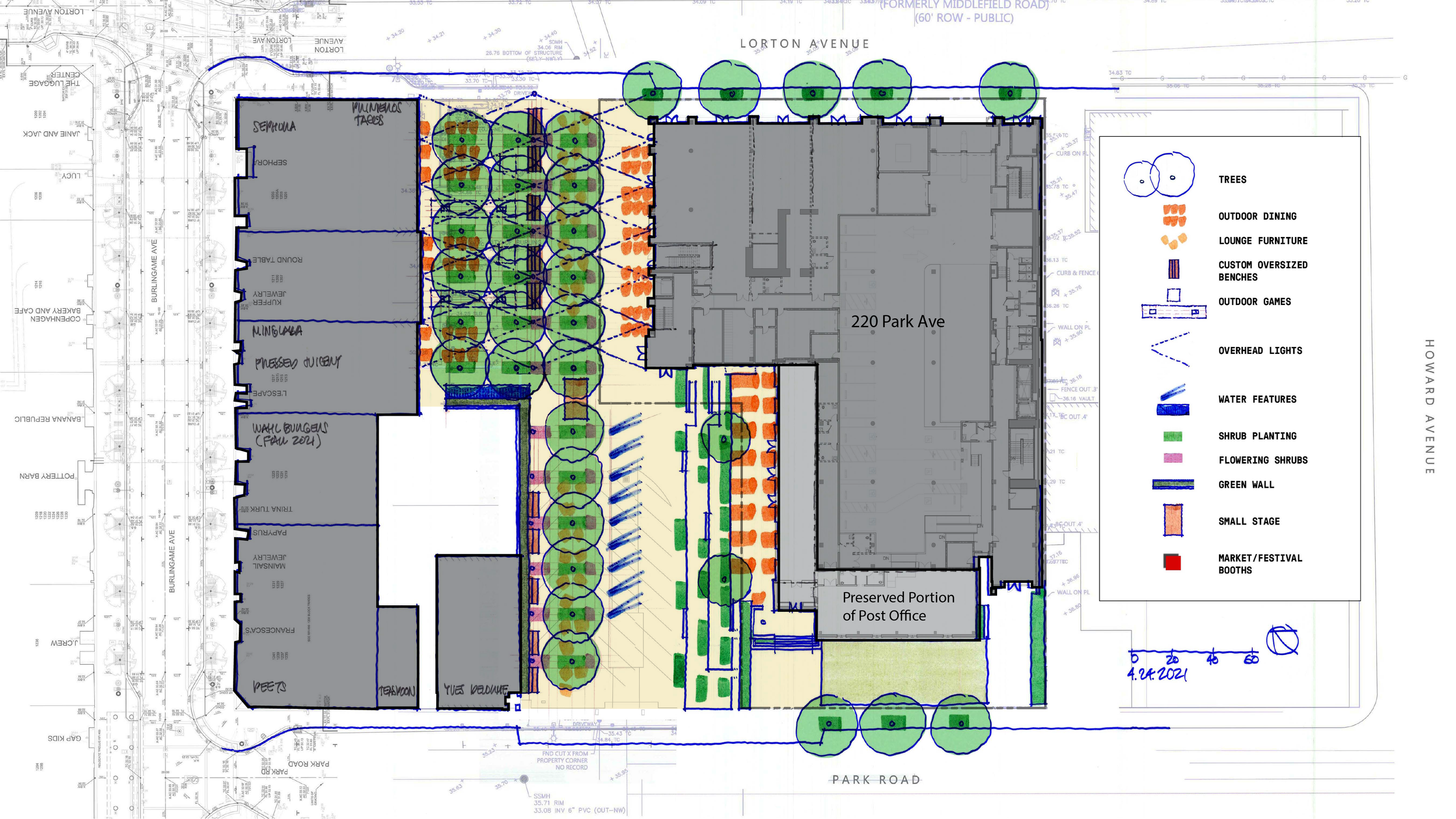
The City of Burlingame was looking to transform an existing parking lot in front of a Historic Post Office into a new Town Square. The site is in the heart of Downtown, in a block fronting on Burlingame Avenue between Lorton Avenue and Park Road.

Burlingame Avenue is Burlingame’s main street and activity center with plenty of restaurants and stores. A new mixed-use office building is under construction on the Historic Post Office site, which opened the opportunity to activate the site together with the existing businesses, which line the site across from the Post Office. The Post Office will be partially preserved and will include a large restaurant patio overlooking the Town Square.

The City of Burlingame was looking to transform an existing parking lot in front of a Historic Post Office into a new Town Square. The site is in the heart of Downtown, in a block fronting on Burlingame Avenue between Lorton Avenue and Park Road. Burlingame Avenue is Burlingame’s main street and activity center with plenty of restaurants and stores. A new mixed-use office building is under construction on the Historic Post Office site, which opened the opportunity to activate the site together with the existing businesses, which line the site across from the Post Office. The Post Office will be partially preserved and will include a large restaurant patio overlooking the Town Square.

All Case Studies

SJSU Campus Master Planning for Transformation
California High-Speed Rail Station
Garden to Transform Hatred into Love

All Featured Projects

North Bay Shore Master Plan
Milpitas Metro Specific Plan
India Basin Master Plan
Monon Boulevard, Carmel, Indiana
Universal City/Studio City Mobility Hub Outreach
Places for People, Vancouver, BC
Newark Old Town Specific Plan
Albany’s San Pablo Avenue Specific Plan
Burlingame Town Square
Fresno High Speed Rail Station Early Site Activation
Morgan Hill Garage Public Art and Signage
Santa Clara Downtown Vision

Other Projects

  • Scotts Valley Town Center Specific Plan Update

  • Alisal District Identity Master Plan

  • Belmont Harbor Industrial Area Specific Plan

  • Dublin Downtown Vision

  • Irvington BART Station Area Plan

  • San Leandro Multi-Family Development Standards

  • Emeryville Objective Design Standards

  • Vision for Downtown Santa Clara Workshops

  • Fremont Mission San Jose Commercial Strategy Study

  • Coliseum Study

  • San Pablo Avenue Specific Plan

  • Burlingame Town Square

  • Port of Redwood City Studies

  • Delta Community Design Charrettes

  • Diamond Bar Comprehensive General Plan Update

  • Oakland Wayfinding

  • Vermont Santa Monica Station Feasibility Study

Urban Field © 2024

Made with ♡ by SuperWorks